市政1號院 - 住家辦公室附大露臺

售價: 1788萬
樓層: 3F/31F
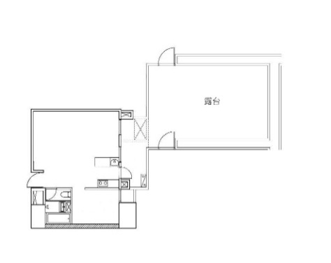
格局: 開放式格局
車位: B7*1個機械車位
登記坪數: 29.32坪
主+陽坪數: 16.57坪
車位坪數: 3.94坪
案名: 市政1號院
地址: 台中市西屯區市政路17號
總戶數: 466戶
建築完成日期: 114年 06月 18日
總樓高: B7F - 31F
基地面積: 1011坪
構造種類: RC+SRC
建設公司: 興富發建設














市政1號院住家辦公室附大露臺
- 市政1號院全新未住,開放式辦公室格局
- 交通便捷,市政路開通中科,連結重要交通幹線
- 可營登辦公室,適合結合住家、辦公首選
- 熱鬧市政核心商圈,生活機能完善
- 額外約17坪大露臺使用,超大生活空間規劃
立即詢問賞屋
精選案源推薦
載入中...
← 左右滑動查看更多 →


